Добро пожаловать на http://vipplan.ru

Випплан Сергиев Посад - это тысячи проектов домов в нашем каталоге!

Вы всегда сможете найти для себя проект дома вашей мечты! Даже если этого не случилось, мы готовы в любую минуту предложить проект индивидуального дома.

Забыли пароль?
Вы еще не регистрировались?

Перейдите по ссылке ниже на страницу регистрации.

Регистрация...

Внимание!!!

В проектную документацию могут быть внесены изменения любой сложности, в соответствии в Вашими пожеланиями!

Полезные статьи

Проекты быстровозводимых домов и коттеджей в Сергиевом Посаде

Некоторые люди до сих пор считают, что быстровозводимые дома представляют собой безликие, недолговечные, однотипные строения. Эти утверждения не соответствуют действительности. На данный момент, строительные технологии шагнули вперед и дома «быстрого приготовления» считаются эталоном комфорта, уюта и даже выделяются, в архитектурном плане, на фоне дорогих кирпичных коттеджей. Быстровозводимые дома не дорогие и изготавливаются в кратчайшие сроки....

Приобретение земельного участка в собственность

Вы собираетесь приобрести участок. Прежде чем принять окончательное решение, тщательно изучите местность, на которой находится ваш участок, внимательно осмотрите местность. Узнайте о близости реки или других водоемах, всмотритесь в рельеф. Каждый из факторов может иметь неоспоримые плюсы, а также минусы, способные повлиять на окончательное решение. Стоит принять во внимание, что земельные участки, которые продаются «напрямую», дешевле тех, которые реализуют, пользуясь услугами посредников....

Проекты домов и коттеджей > Каталог проектов домов > Проект двухэтажного дома с подвалом Vg1174

Проект двухэтажного дома с подвалом Vg1174

Проект двухэтажного дома с подвалом
Зарегистрируйтесь

Проект № Vg1174


Техническое описание
Общая площадь: 216.2 м2
Жилая площадь: 91.52 м2
Высота здания: 9.57 м
Размеры дома: 14.22м×12.84м
Кол-во комнат: 6
Цокольный этаж: есть
Гараж: нет
Мансарда: нет

Kонструкция
Фундамент: Ленточный
Перекрытия: Деревянные балки
Материал стен: Газобетон

Архитектурный раздел
Конструктивный раздел
АР+КР - 64 000 (Со скидкой 20%)
Проект индивидуального двухтажного жилого дома с размерами здания 14,22 x 12,84 м. Наружная отделка здания – сайдинг. Фундамент –ленточный из блоков ФБС (под несущими стенами). Наружные стены – газобетонные блоки, минеральная вата ,сайдинг. Внутренние стены - газобетонные блоки Перегородки – газобетонные блоки. Пол подвала - пол по грунту. Межэтажное перекрытие — ж/б плиты. Чердачное перекрытие - деревянные балки. Крыша – металлочерепица. Кровля – многоскатая. Окна - металлопластиковые, выполненные по индивидуальному заказу.
Генплан застройки участка / Паспорт проекта 7000 руб / 10000 руб
Инженерный раздел (полный) 108000 руб
Смета на строительство 54000 руб
Теплотехнический расчет материалов стен Бесплатно
Стоимость проекта со незначительнми изменениями 74600 руб
Стоимость проекта со средними изменениями* 90800 руб
Стоимость проекта со значительными изменениями** 95100 руб

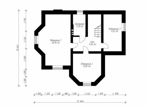
План цокольного этажа


Холл — 11,36 м2
Бойлерная — 5,28 м2
Помещение 1 — 28,92 м2
Помещение 2 — 15,00 м2
Помещение 3 — 13,52 м2

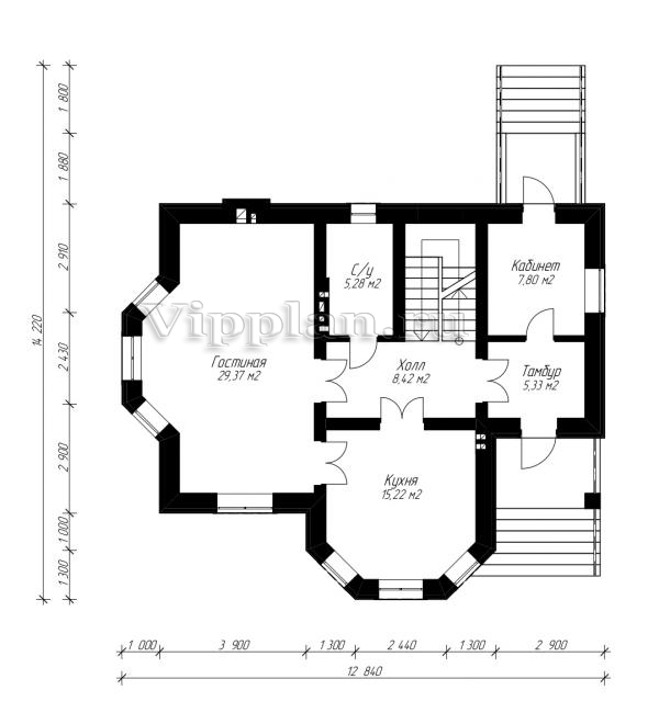
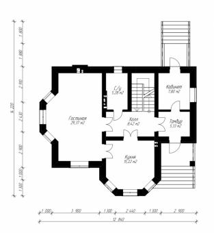
План первого этажа


Тамбур — 5,33 м2
Холл — 8,42 м2
Гостиная — 29,37 м2
С/у — 5,28 м2
Кухня — 15,22 м2
Кабинет — 7,80 м2

Проект двухэтажного дома с подвалом

Проект двухэтажного дома с подвалом

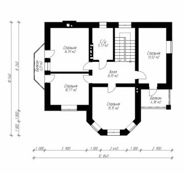
План второго этажа


Холл — 8,35 м2
Спальня — 14,91 м2
С/у — 5,73 м2
Спальня — 13,52 м2
Спальня — 15,15 м2
Спальня — 10,77 м2
Балкон — 4,38 м2
Балкон — 3,21 м2
Проект двухэтажного дома с подвалом Проект двухэтажного дома с подвалом Проект двухэтажного дома с подвалом Проект двухэтажного дома с подвалом
Внесение изменений и привязка к участку строительства

В любой из проектов от компании VIPplan - Сергиев Посад по вашему желанию могут быть внесены изменения в материалы стен, материалы наружной отделки дома, а также будет произведена адаптация проекта под конкретный регион строительства (с учетом грунтов региона, геологических особенностей вашего участка и местных климатических условий) - БЕСПЛАТНО !!! (кроме проектов со скидкой и проектов наших партнеров).

Любой из проектов, размещенных на сайте sergiev-posad.vipplan.ru мы можем выполнить из требуемых вам строительных материалов: ячеистый бетон (газобетон, пеноблок), керамоблок, кирпич, шлакоблок, бетонный блок, дерево (брус, клееный брус), каркасная технология (деревянный каркас, металлокаркас (ЛСТК)).

Фасад дома и его наружную отделку так же возможно выполнить с применением различных облицовочных материалов: структурной штукатурки, (с утеплителем и без), сайдингом (пластиковый или металлосайдинг), фиброплитами, кирпича.

 
6 Избранные
проекты

Доставка проектов по России: Москва (Московская область), Санкт-Петербург (Ленинградская область), Краснодар, Ростов-на-Дону, Ставрополь, Сочи, Волгоград, Новосибирск, Белгород, Брянск, Воронеж, Саратов, Хабаровск, Астрахань, Нальчик, Владикавказ, Екатеринбург, Тюмень, Самара, Нижний Новгород, Казань, Пермь, Уфа, Челябинск, Красноярск, Ханты-Мансийск, Иркутск, Курган, Оренбург, Омск, Томск, Барнаул, Новокузнецк, Кемерово, Абакан, Чита, Якутск, Южно-Сахалинск, Петропавловск-Камчатский и страны ближнего зарубежья: Белоруссия, Украина, Казахстан