Добро пожаловать на http://vipplan.ru

Випплан Сергиев Посад - это тысячи проектов домов в нашем каталоге!

Вы всегда сможете найти для себя проект дома вашей мечты! Даже если этого не случилось, мы готовы в любую минуту предложить проект индивидуального дома.

Забыли пароль?
Вы еще не регистрировались?

Перейдите по ссылке ниже на страницу регистрации.

Регистрация...

Внимание!!!

В проектную документацию могут быть внесены изменения любой сложности, в соответствии в Вашими пожеланиями!

Полезные статьи

Применение ленточных фундаментов

Большинство людей никогда не сталкивались с выбором фундамента, а, столкнувшись, не могут определиться с выбором. Ведущие специалисты в области строительства утверждают, что лучшим типом фундамент - ленточный фундамент. Как показывает статистика, ленточный фундамент очень популярен среди жителей нашей страны. ...

Искусственный камень

Среди современных материалов, особого внимания заслуживает искусственный камень. Естественность и красота натурального камня очевидна. Но нужно реально оценивать свои возможности и присмотреться именно к искусственному камню, так как сам искуственный камень и стоимость производства работ с ним в Сергиевом Посаде значительно дешевле чем натуральный....

Проекты домов и коттеджей > Каталог проектов домов > Двухэтажный дом с террасой и балконом Vg986

Двухэтажный дом с террасой и балконом Vg986

Двухэтажный дом с террасой и балконом
Зарегистрируйтесь

Проект № Vg986


Техническое описание
Общая площадь: 202.96 м2
Жилая площадь: 112.24 м2
Высота здания: 9.96 м
Размеры дома: 13.14м×12.04м
Кол-во комнат: 6
Цокольный этаж: нет
Гараж: нет
Мансарда: нет

Kонструкция
Фундамент: Ленточный, монолитный ж/б
Перекрытия: Сборные ж/б плиты
Материал стен: Опалубка

Архитектурный раздел
Конструктивный раздел
АР+КР - 64 000 (Со скидкой 20%)
Проект индивидуального двухэтажного одноквартирного жилого дома с размерами здания 13,14x12,04м. Наружная отделка здания - фасадная штукатурка.Частично по фасаду отделка клинкерной плиткой. Цоколь - клинкерная плитка. Кровля - металлочерепица. Фундамент - ленточный, монолитный ж/б. Наружные и частично внутренние несущие стены запроектированы по технологии несъемной опалубки - "BRIXX " с последующим нанесением декоративной штукатурки. Внутренние несущие стены и перегородки из кирпича. Перекрытие над первым этажом - сборные ж/б плиты перекрытий. Пол первого этажа - пол по грунту. Чердачное перекрытие - по деревянным балкам с использованием теплошумоизоляционных материалов типа "URSA" в межбалочном пространстве. Крыша - многоскатная. Материал кровли - металлочерепица. Окна - металлопластиковые, выполненные по индивидуальному заказу. Лестница - выполняется по индивидуальному заказу.
Генплан застройки участка / Паспорт проекта 7000 руб / 10000 руб
Инженерный раздел (полный) 101500 руб
Смета на строительство 50750 руб
Теплотехнический расчет материалов стен Бесплатно
Стоимость проекта со незначительнми изменениями 74900 руб
Стоимость проекта со средними изменениями* 90200 руб
Стоимость проекта со значительными изменениями** 94200 руб

План первого этажа


Терраса — 29,09 кв м
Гостиная — 27,34 кв м
Столовая — 15,12 кв м
Кабинет — 17,51 кв м
Кухня — 10,32 кв м
Холл — 16,85 кв м
С/у — 5,78 кв м
Прихожая — 5,66 кв м
Бойлерная — 6,06 кв м
Крыльцо — 4,70 кв м

Двухэтажный дом с террасой и балконом

Двухэтажный дом с террасой и балконом

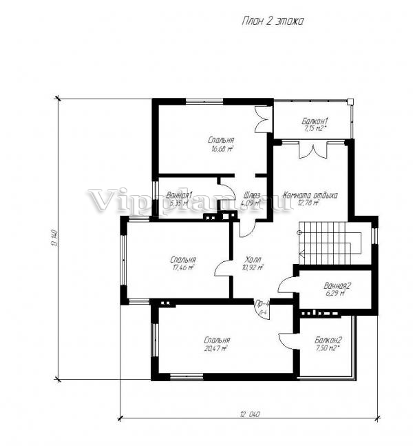
План второго этажа


Спальня — 16,68 кв м
Балкон 1 — 7,15 кв м
Комната — 12,78 кв м
Шлюз — 4,09 кв м
Холл — 10,92 кв м
Ванная 1 — 5,35 кв м
Спальня — 17,46 кв м
Ванная 2 — 6,29 кв м
Спальня — 20,47 кв м
Балкон 2 — 7,50 кв м
Двухэтажный дом с террасой и балконом Двухэтажный дом с террасой и балконом Двухэтажный дом с террасой и балконом Двухэтажный дом с террасой и балконом

Модификации проектов

Внесение изменений и привязка к участку строительства

В любой из проектов от компании VIPplan - Сергиев Посад по вашему желанию могут быть внесены изменения в материалы стен, материалы наружной отделки дома, а также будет произведена адаптация проекта под конкретный регион строительства (с учетом грунтов региона, геологических особенностей вашего участка и местных климатических условий) - БЕСПЛАТНО !!! (кроме проектов со скидкой и проектов наших партнеров).

Любой из проектов, размещенных на сайте sergiev-posad.vipplan.ru мы можем выполнить из требуемых вам строительных материалов: ячеистый бетон (газобетон, пеноблок), керамоблок, кирпич, шлакоблок, бетонный блок, дерево (брус, клееный брус), каркасная технология (деревянный каркас, металлокаркас (ЛСТК)).

Фасад дома и его наружную отделку так же возможно выполнить с применением различных облицовочных материалов: структурной штукатурки, (с утеплителем и без), сайдингом (пластиковый или металлосайдинг), фиброплитами, кирпича.

 
6 Избранные
проекты

Доставка проектов по России: Москва (Московская область), Санкт-Петербург (Ленинградская область), Краснодар, Ростов-на-Дону, Ставрополь, Сочи, Волгоград, Новосибирск, Белгород, Брянск, Воронеж, Саратов, Хабаровск, Астрахань, Нальчик, Владикавказ, Екатеринбург, Тюмень, Самара, Нижний Новгород, Казань, Пермь, Уфа, Челябинск, Красноярск, Ханты-Мансийск, Иркутск, Курган, Оренбург, Омск, Томск, Барнаул, Новокузнецк, Кемерово, Абакан, Чита, Якутск, Южно-Сахалинск, Петропавловск-Камчатский и страны ближнего зарубежья: Белоруссия, Украина, Казахстан