Добро пожаловать на http://vipplan.ru

Випплан Сергиев Посад - это тысячи проектов домов в нашем каталоге!

Вы всегда сможете найти для себя проект дома вашей мечты! Даже если этого не случилось, мы готовы в любую минуту предложить проект индивидуального дома.

Забыли пароль?
Вы еще не регистрировались?

Перейдите по ссылке ниже на страницу регистрации.

Регистрация...

Внимание!!!

В проектную документацию могут быть внесены изменения любой сложности, в соответствии в Вашими пожеланиями!

Полезные статьи

Искусственный камень

Среди современных материалов, особого внимания заслуживает искусственный камень. Естественность и красота натурального камня очевидна. Но нужно реально оценивать свои возможности и присмотреться именно к искусственному камню, так как сам искуственный камень и стоимость производства работ с ним в Сергиевом Посаде значительно дешевле чем натуральный....

Приобретение земельного участка в собственность

Вы собираетесь приобрести участок. Прежде чем принять окончательное решение, тщательно изучите местность, на которой находится ваш участок, внимательно осмотрите местность. Узнайте о близости реки или других водоемах, всмотритесь в рельеф. Каждый из факторов может иметь неоспоримые плюсы, а также минусы, способные повлиять на окончательное решение. Стоит принять во внимание, что земельные участки, которые продаются «напрямую», дешевле тех, которые реализуют, пользуясь услугами посредников....

Проекты домов и коттеджей > Каталог проектов домов > Проект одноэтажного дома с подвалом и мансардой Vg2226

Проект одноэтажного дома с подвалом и мансардой Vg2226

Проект одноэтажного дома с подвалом и мансардой
Зарегистрируйтесь

Проект № Vg2226


Техническое описание
Общая площадь: 206.91 м2
Жилая площадь: 88.46 м2
Высота здания: 9 м
Размеры дома: 15.5м×13.8м
Кол-во комнат: 6
Цокольный этаж: нет
Гараж: нет
Мансарда: есть

Kонструкция
Фундамент: ленточный монолитный ж/б
Перекрытия: монолитный ж/б
Материал стен: material_mon

Архитектурный раздел
Конструктивный раздел
Инженерный раздел
АР+КР - 64 000 (Со скидкой 20%)
АР+КР+ИР - 136 450 (Со скидкой 50%)
Проект индивидуального одноэтажного жилого дома с подвалом и мансардой с размерами здания 15,50 x 13,80 м. Наружная отделка здания – фасадные фиброцементные панели Nichiha. Фундамент – ленточный монолитный ж/б. Наружные стены – монолитный ж/б с утеплителем, воздушным зазором и отделкой фасадными фиброцементными панелями Nichiha. Внутренние стены – монолитный ж/б. Перегородки – каркасные. Пол подвала – пол по грунту. Межэтажные перекрытия – монолитные ж/б. Крыша – многоскатная. Кровля – фальцевая. Окна – металлопластиковые. Лестница – монолитная ж/б.
Генплан застройки участка / Паспорт проекта 7000 руб / 10000 руб
Инженерный раздел (полный) 72450 руб (103500 руб)
Смета на строительство 51750 руб
Теплотехнический расчет материалов стен Бесплатно
Стоимость проекта со незначительнми изменениями 74800 руб
Стоимость проекта со средними изменениями* 90400 руб
Стоимость проекта со значительными изменениями** 94500 руб

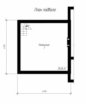
План цокольного этажа


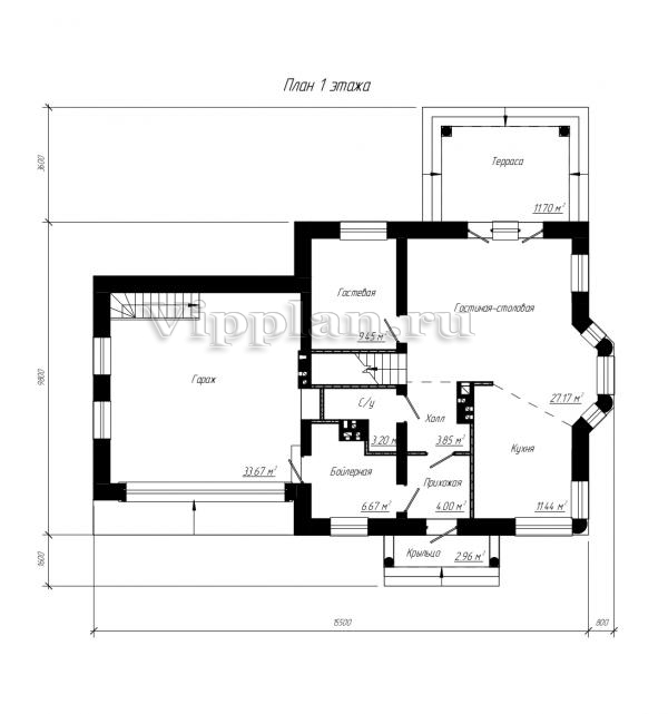
Прихожая — 4,00 кв м
Холл - 3,85 кв м
Кухня - 11,44 кв м
Гостиная - 27,17 кв м
Гостевая - 9,45 кв м
С/у - 3,20 кв м
Бойлерная - 6,67 кв м
Гараж - 33,67 кв м

План первого этажа


Холл - 5,11 кв м
С/у - 6,59 кв м
Гардероб — 2,74 кв м
С/у — 4,61 кв м
Спальня - 17,14 кв м
Спальня - 10,41 кв м
Спальня - 13,12 кв м
Спальня - 11,17 кв м
Балкон - 0,65 кв м
Балкон - 1,28 кв м

План мансардного этажа



Проект одноэтажного дома с подвалом и мансардой Проект одноэтажного дома с подвалом и мансардой Проект одноэтажного дома с подвалом и мансардой Проект одноэтажного дома с подвалом и мансардой

Модификации проектов

Внесение изменений и привязка к участку строительства

В любой из проектов от компании VIPplan - Сергиев Посад по вашему желанию могут быть внесены изменения в материалы стен, материалы наружной отделки дома, а также будет произведена адаптация проекта под конкретный регион строительства (с учетом грунтов региона, геологических особенностей вашего участка и местных климатических условий) - БЕСПЛАТНО !!! (кроме проектов со скидкой и проектов наших партнеров).

Любой из проектов, размещенных на сайте sergiev-posad.vipplan.ru мы можем выполнить из требуемых вам строительных материалов: ячеистый бетон (газобетон, пеноблок), керамоблок, кирпич, шлакоблок, бетонный блок, дерево (брус, клееный брус), каркасная технология (деревянный каркас, металлокаркас (ЛСТК)).

Фасад дома и его наружную отделку так же возможно выполнить с применением различных облицовочных материалов: структурной штукатурки, (с утеплителем и без), сайдингом (пластиковый или металлосайдинг), фиброплитами, кирпича.

 
6 Избранные
проекты

Доставка проектов по России: Москва (Московская область), Санкт-Петербург (Ленинградская область), Краснодар, Ростов-на-Дону, Ставрополь, Сочи, Волгоград, Новосибирск, Белгород, Брянск, Воронеж, Саратов, Хабаровск, Астрахань, Нальчик, Владикавказ, Екатеринбург, Тюмень, Самара, Нижний Новгород, Казань, Пермь, Уфа, Челябинск, Красноярск, Ханты-Мансийск, Иркутск, Курган, Оренбург, Омск, Томск, Барнаул, Новокузнецк, Кемерово, Абакан, Чита, Якутск, Южно-Сахалинск, Петропавловск-Камчатский и страны ближнего зарубежья: Белоруссия, Украина, Казахстан