Добро пожаловать на http://vipplan.ru

Випплан Сергиев Посад - это тысячи проектов домов в нашем каталоге!

Вы всегда сможете найти для себя проект дома вашей мечты! Даже если этого не случилось, мы готовы в любую минуту предложить проект индивидуального дома.

Забыли пароль?
Вы еще не регистрировались?

Перейдите по ссылке ниже на страницу регистрации.

Регистрация...

Внимание!!!

В проектную документацию могут быть внесены изменения любой сложности, в соответствии в Вашими пожеланиями!

Полезные статьи

Перекрытия в доме

Перекрытия – одно из важнейших составляющих строящегося дома. Это горизонтальная внутренняя защитная конструкция, разделяющая по уровню смежные помещения дома. По назначению выделяют подвальные, межэтажные и чердачные перекрытия. При проектировании домов и зданий различного назначения, требования к межэтажным перекрытиям определяются их местоположением и функциями разделяемых помещений: надподвальные, межэтажные, чердачные и т.д....

Вентиляция в подвале дома

Без подвала или цокольного этажа в частном доме, в наше время, не обойтись. Это полезное для дома помещение должно быть хорошо вентилируемым. В доме с подвалом должна быть хорошая циркуляция воздуха, для сохранения находящихся в нем продуктов. Отсутствие вентиляции  может привести к образованию плесени и сырости не только в подвале, но и во всем доме....

Проекты домов и коттеджей > Каталог проектов домов > Проект индивидуального одноэтажного жилого дома с мансардой в английском стиле Vg2376

Проект индивидуального одноэтажного жилого дома с мансардой в английском стиле Vg2376

Проект индивидуального одноэтажного жилого дома с мансардой в английском стиле
Зарегистрируйтесь

Проект № Vg2376


Техническое описание
Общая площадь: 220.69 м2
Жилая площадь: 126.45 м2
Высота здания: 8.74 м
Размеры дома: 9.92м×16.72м
Кол-во комнат: 6
Цокольный этаж: нет
Гараж: нет
Мансарда: есть

Kонструкция
Фундамент: ленточный монолитный ж/б под несущими стенами
Перекрытия: монолитная ж/б плита
Материал стен: Газобетон

Архитектурный раздел
АР+КР - 64 000 (Со скидкой 20%)
Модель проекта индивидуального одноэтажного жилого дома с мансардой с размерами здания 11,44 x 13,94 м. Наружная отделка здания – облицовочный кирпич Фундамент –ленточный монолитный ж/б под несущими стенами Наружные стены – газоблок с воздушным зазором Внутренние стены - газоблок Перегородки - забутовочный кирпич Пол 1 этажа - пол по грунту. Межэтажное перекрытия - монолитная ж/б плита. Крыша многоскатная. Кровля – битумная черепица. Окна — металлопластиковые.
Генплан застройки участка / Паспорт проекта 7000 руб / 10000 руб
Инженерный раздел (полный) 110500 руб
Смета на строительство 55250 руб
Теплотехнический расчет материалов стен Бесплатно
Стоимость проекта со незначительнми изменениями 74450 руб
Стоимость проекта со средними изменениями* 91100 руб
Стоимость проекта со значительными изменениями** 95500 руб

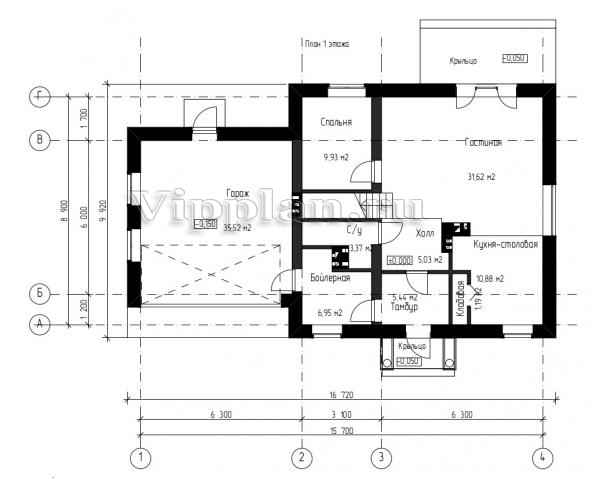
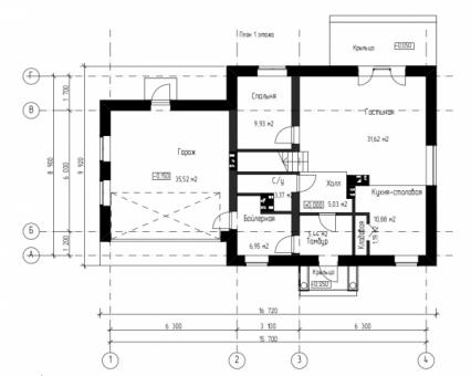
План первого этажа


Тамбур — 5,44 м2
Холл — 5,03 м2
Гостиная — 31,62 м2
Кухня — 10,88 м2
Спальня — 9,93 м2
С/у — 3,37 м2
Бойлерная — 6,95 м2
Гараж — 35,52 м2

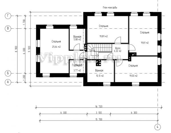
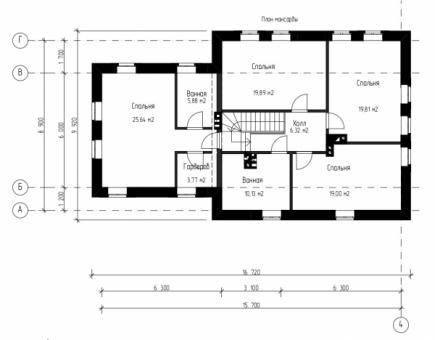
План мансардного этажа


Холл — 6,32 м2
Спальня — 19,89 м2
Спальня — 19,81 м2
Спальня — 19 м2
Ванная — 10,13 м2
Спальня — 25,64 м2
Ванная — 5,88 м2
Гардероб — 3,77 м2
Проект индивидуального одноэтажного жилого дома с мансардой в английском стиле Проект индивидуального одноэтажного жилого дома с мансардой в английском стиле Проект индивидуального одноэтажного жилого дома с мансардой в английском стиле Проект индивидуального одноэтажного жилого дома с мансардой в английском стиле

Модификации проектов

Внесение изменений и привязка к участку строительства

В любой из проектов от компании VIPplan - Сергиев Посад по вашему желанию могут быть внесены изменения в материалы стен, материалы наружной отделки дома, а также будет произведена адаптация проекта под конкретный регион строительства (с учетом грунтов региона, геологических особенностей вашего участка и местных климатических условий) - БЕСПЛАТНО !!! (кроме проектов со скидкой и проектов наших партнеров).

Любой из проектов, размещенных на сайте sergiev-posad.vipplan.ru мы можем выполнить из требуемых вам строительных материалов: ячеистый бетон (газобетон, пеноблок), керамоблок, кирпич, шлакоблок, бетонный блок, дерево (брус, клееный брус), каркасная технология (деревянный каркас, металлокаркас (ЛСТК)).

Фасад дома и его наружную отделку так же возможно выполнить с применением различных облицовочных материалов: структурной штукатурки, (с утеплителем и без), сайдингом (пластиковый или металлосайдинг), фиброплитами, кирпича.

 
6 Избранные
проекты

Доставка проектов по России: Москва (Московская область), Санкт-Петербург (Ленинградская область), Краснодар, Ростов-на-Дону, Ставрополь, Сочи, Волгоград, Новосибирск, Белгород, Брянск, Воронеж, Саратов, Хабаровск, Астрахань, Нальчик, Владикавказ, Екатеринбург, Тюмень, Самара, Нижний Новгород, Казань, Пермь, Уфа, Челябинск, Красноярск, Ханты-Мансийск, Иркутск, Курган, Оренбург, Омск, Томск, Барнаул, Новокузнецк, Кемерово, Абакан, Чита, Якутск, Южно-Сахалинск, Петропавловск-Камчатский и страны ближнего зарубежья: Белоруссия, Украина, Казахстан