Добро пожаловать на http://vipplan.ru

Випплан Сергиев Посад - это тысячи проектов домов в нашем каталоге!

Вы всегда сможете найти для себя проект дома вашей мечты! Даже если этого не случилось, мы готовы в любую минуту предложить проект индивидуального дома.

Забыли пароль?
Вы еще не регистрировались?

Перейдите по ссылке ниже на страницу регистрации.

Регистрация...

Внимание!!!

В проектную документацию могут быть внесены изменения любой сложности, в соответствии в Вашими пожеланиями!

Полезные статьи

Утепление стен дома изнутри

Утепление стен дома изнутри – это не правильный метод теплоизоляции помещения и используется в самом крайнем случае, когда других вариантов уже не остается. Как правило, утепление стен изнутри выполняется по незнанию или вынужденно, поскольку, теплоизоляция внутренних помещений дома другим способом невозможна. Вопросы теплоизоляции необходимо решать на стадии проектирования дома или коттеджа, а не тогда когда дом уже построен и приходится исправлять совершенные ошибки по факту....

Применение свайных фундаментов

Сваи представляют собой длинные стержни, погруженные глубоко в грунт или изготовленные непосредственно в грунте. Покупные сваи с одной стороны имеют заостренный конец, который забивается в почву с помощью специальной техники. Установка свай, изготовленных своими руками, предполагают бурение скважин, армирование и заливку бетонного раствора. ...

Проекты домов и коттеджей > Каталог проектов домов > Проект одноэтажного дома с мансардой и эркером Vg2344

Проект одноэтажного дома с мансардой и эркером Vg2344

Проект одноэтажного дома с мансардой и эркером
Зарегистрируйтесь

Проект № Vg2344


Техническое описание
Общая площадь: 93.9 м2
Жилая площадь: 58.1 м2
Высота здания: 8.15 м
Размеры дома: 7.14м×9.84м
Кол-во комнат: 3
Цокольный этаж: нет
Гараж: нет
Мансарда: есть

Kонструкция
Фундамент: Свайно-ростверковый
Перекрытия: Деревянные балки
Материал стен: Дерево

Архитектурный раздел
Конструктивный раздел
Инженерный раздел
АР+КР - 44 000 (Со скидкой 20%)
АР+КР+ИР - 79 000 (Со скидкой 50%)
Модель проекта индивидуального одноэтажного жилого дома с мансардой с размерами здания 7,14 x 9,84 м. Наружная отделка здания - металлосайдинг. Фундамент - свайно-ростверковый. Наружные стены - брус с утеплителем и отделкой металлосайдингом. Внутренние стены - брус. Перегородки - брус. Пол первого этажа - пол по деревянным балкам перекрытия. Межэтажное перекрытие - деревянные балки перекрытия. Крыша - многоскатная. Кровля - металлочерепица. Окна - металлопластиковые. Лестница - деревянная.
Генплан застройки участка / Паспорт проекта 7000 руб / 10000 руб
Инженерный раздел (полный) 35000 руб (50000 руб)
Смета на строительство 25000 руб
Теплотехнический расчет материалов стен Бесплатно
Стоимость проекта со незначительнми изменениями 52650 руб
Стоимость проекта со средними изменениями* 59700 руб
Стоимость проекта со значительными изменениями** 61600 руб

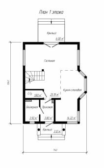
План первого этажа


Прихожая - 5,93 кв м
Кухня-столовая - 14,22 кв м
Гостиная - 25,19 кв м
С/у - 1,80 кв м
Бойлерная - 3,92 кв м

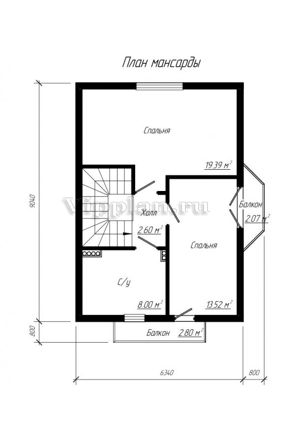
План мансардного этажа


Холл - 2,60 кв м
С/у - 8,00 кв м
Спальня - 13,52 кв м
Спальня - 19,39 кв м
Балкон — 0,62 кв м
Балкон - 0,84 кв м
Проект одноэтажного дома с мансардой и эркером Проект одноэтажного дома с мансардой и эркером Проект одноэтажного дома с мансардой и эркером Проект одноэтажного дома с мансардой и эркером

Модификации проектов

Внесение изменений и привязка к участку строительства

В любой из проектов от компании VIPplan - Сергиев Посад по вашему желанию могут быть внесены изменения в материалы стен, материалы наружной отделки дома, а также будет произведена адаптация проекта под конкретный регион строительства (с учетом грунтов региона, геологических особенностей вашего участка и местных климатических условий) - БЕСПЛАТНО !!! (кроме проектов со скидкой и проектов наших партнеров).

Любой из проектов, размещенных на сайте sergiev-posad.vipplan.ru мы можем выполнить из требуемых вам строительных материалов: ячеистый бетон (газобетон, пеноблок), керамоблок, кирпич, шлакоблок, бетонный блок, дерево (брус, клееный брус), каркасная технология (деревянный каркас, металлокаркас (ЛСТК)).

Фасад дома и его наружную отделку так же возможно выполнить с применением различных облицовочных материалов: структурной штукатурки, (с утеплителем и без), сайдингом (пластиковый или металлосайдинг), фиброплитами, кирпича.

 
6 Избранные
проекты

Доставка проектов по России: Москва (Московская область), Санкт-Петербург (Ленинградская область), Краснодар, Ростов-на-Дону, Ставрополь, Сочи, Волгоград, Новосибирск, Белгород, Брянск, Воронеж, Саратов, Хабаровск, Астрахань, Нальчик, Владикавказ, Екатеринбург, Тюмень, Самара, Нижний Новгород, Казань, Пермь, Уфа, Челябинск, Красноярск, Ханты-Мансийск, Иркутск, Курган, Оренбург, Омск, Томск, Барнаул, Новокузнецк, Кемерово, Абакан, Чита, Якутск, Южно-Сахалинск, Петропавловск-Камчатский и страны ближнего зарубежья: Белоруссия, Украина, Казахстан